サウナ好きなら一度は行きたい
「サウナの聖地」
今年も間もなく終わりますが、だからこそ緊急で出したかった記事があります。
2025年で20周年を迎えた「サウナ しきじ」の特集記事です!
聖地として、多くのファンを持つしきじを豊富な写真と図解で徹底解剖。
これからもサウナーたちに愛され続ける「サウナ しきじ」の魅力を、今一度味わおうではありませんか!
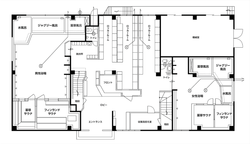
本コーナーではその魅力の一端をいくつかに分け、施設図解とともに紹介していく。


ここからワクワク感が止まらない!
玄関

「しきじに来たぞ!」というワクワク感をここから感じる、という人も少なくないはず。
初めてしきじを訪れる人は、入口の色紙のラインナップを見てまず驚く。
ほんのりいい香りがするのは温浴施設あるあるだが、男性浴場の滝の音が聞こえてくるのはしきじだけ。
しきじグッズはここで買える

受付の方がいつも笑顔で迎えてくれる。
Tシャツやタオル、トートバッグなどのオリジナルグッズも販売中。
女性サウナーはこちらの入口へ

受付を済ませたら、女性は右側の入口へ。男性側の暖簾と対になっており、わかりやすく赤い暖簾になっている。
取材情報もここでわかる

入場券をここで買ってから受付へ行こう。メディア取材の日時も告知されているので念のため確認を。
スポーツ選手からお笑い芸人までズラリ

初見だと圧倒されてしまうサインの数々。
あらゆる有名人のサインがあり、しきじの人気の高さがよくわかる。
最も多いサインは藤森慎吾さん?
湯上がりに飲みたいドリンクはここで

風呂上がりに定番の牛乳はもちろん、野菜ジュースなどもストック。
香りのよい「コーンひげ茶」も人気がある。
ここから先が極楽! 男性脱衣所入口

受付で手続きを済ませ、この暖簾をくぐった先が脱衣所となる。
両脇は靴箱となっており、鍵は受付に預ける流れ。
現世のしがらみと服はここにおいて
脱衣所

ロッカーがずらりと並んでいるが、不思議と圧迫感がない。
しきじは浴場が清潔にされているとよくいわれるが、脱衣所も同様に掃除が行き届いているのがわかる。
多くの客がここで素早く着替え、足早に浴場に吸い込まれていく。
耳をすますと、水風呂の滝の音が聞こえてくる。
ウッディーなロッカーがずらりと並ぶ

現オーナーが当施設を買い取った際は金属製のロッカーだったそうで、現在のロッカーに変わったのは、名称が「しきじ」になってからだそう。
ところどころに置かれた丸椅子が○

いたるところに置かれた丸椅子に心配りが見られる。
高齢者のお客も座って着替えることができるので安心。
暖簾をくぐったらまずは右へ進む

入口である暖簾をくぐったら、まずは右手側に進むことになる。
ここで着替えてから引き返し、左手側の浴場へ。
サウナ上がりは休憩室でまったり

休憩室のある2階に続く階段。
訪れた多くの客は休憩室に行き、食事をしたり、ゆっくりテレビを見たりして過ごす。
タオルや館内着はここに預けて

他の施設にはあまり見られない、タオルなどを置く棚が設置されている。
自分のロッカーの番号が使える。
タオルの替えはここで。水は天然水が飲める

給水機の水は水風呂と同じ天然水が飲める。
フェイスタオルも常備され、きれいなタオルがいつでも使える。
男性のロッカーは全部で100

番号が1から始まり、ぐるりとまわって100で完結。
大きさを調整して100で収めているのはこだわりか。
動線の良さも魅力
浴場(男性)

シンプルにしてこだわり抜かれた浴室は昼夜を問わず多くの利用者で賑わっている。
しきじでは50メートル地下から汲み上げた天然水を全館で使用しており、その心地よさはまさに中毒になるほど。
外気浴がないから……と敬遠する人もいるが、ぜひ一度体験してみるべきだ。

① しきじ名物・滝がある水風呂

ダイナミックな滝が爽快な天然水かけ流しの水風呂。
広さは約3メートル四方、定員10人程度で、水温は18度。
なお、滝部分はかけ流しではなく、別の吐水口から水を飲むことができる。
1日1回、15時に水を入れ替えるなど、水質管理は徹底している。
② 独自のブレンドが効く薬草風呂

水温39度の漢方薬草風呂。定員8人程度。
マツフジ、オオバコ、ドクダミなど10種類以上の薬草成分が皮膚、胃腸、肩こりなどに効く。
③ フィンランドサウナと薬草サウナ

向かって右が薬草サウナ、左がフィンランドサウナ。
どちらも他の店にはない強いインパクトを与える。
④ ゴロ寝もできる休憩スペース

交互浴の合間に休憩するペンチ。
ととのい椅子よりも気軽に座ることができるので、クイックなサ活にはちょうどいい。
大きな窓と広々スペース
フィンランドサウナ(男性)

続いては男性側のフィンランドサウナを紹介する。
室温は常に110度をキープしている。
かなりの高温だが、適度な湿度調整がされている。
3~5分程度での交互浴がオススメだ。
床にはタオルも敷いてあるが、さらに布製のサウナマットが使い放題。
ちなみに笹野さんは8分→5分→6分のセットが通常とのこと。
① 薬草サウナの様子が見える窓

隣の薬草サウナと繋がっている窓。
フィンランドサウナ内にあるテレビ視聴が主な目的ではあるが、あるとないとでは開放感が違う。
② マットが敷き詰められた床

床にタオルが敷き詰められているのが特徴。
これは常にスタッフが交換しているので清潔だ。
③ 初心者は窓際がオススメ

入口側のL字型のスペースは反対側よりもやや温度も低く、比較的ゆったり過ごすことができるので初心者には良いかも。
④ 個人で敷くマットはセルフで

テレビは2つのサウナ通して1つ。
薬草サウナの時は窓を通して見よう。やはり高温でよく故障してしまうそう。
⑤ 工夫されたサウナヒーター

サウナストーブはメトス製。
強力な出力で広いサウナ室全体を熱する。
とはいえ場所によって温度差があるので、自分のスポットを見つけよう。
⑥ 三段に見えるが実は二段

三段のスペースは当然ながら最上段はかなりの高温で3分が限界。
笹野さんオススメは中段真ん中あたりのややストーブ寄りだそう。
香りと熱がクセになる!
薬草サウナ(男性)

薬草は韓国の調合師が配合したものをコンテナで大量に輸入している超本格的な韓国式。
温度湿度共に60度だが体感はそれ以上で、初回は間違いなく蒸気と漢方独特の香りに圧倒される。
しかし元々身体には良いのでクセになること間違いなし。
① 使うのは特別な配合の薬草

室内に吊り下げられた袋には薬草が入っており、2週間に一度交換。その後は床下のタンクに入り、蒸気の香り付けとなる。
② フィンランドサウナとはまた違った熱さ!

ひな壇2段側からは隣のフィンランドサウナのテレビを視聴することができる。が、蒸気と流れ続ける汗で少し見づらいかも……。
③ 蒸気で常に曇っている窓
浴室が見える窓近くの席は開放感で蒸気と香りのインパクトを和らげてくれるかもしれない。
あくまでも気分の問題かもしれないが……。
④ 床からは常に猛烈な蒸気が上がる
薬草サウナの床下には水の入ったタンクと蒸気管が敷かれており、板のすき間から高温多湿の蒸気が噴出する仕組み。
⑤ フィンランドサウナが見える窓

同じサウナでもフィンランドとは効果も違う薬草サウナ。
本場からの大量買い付けでしか実現出来ない濃厚な薬効を体験してみよう。
⑥ 温度は60℃を指しているが……
壁には温度計湿度計、そして薬草袋が通常14袋ほど吊り下げられている。
その中身は当帰・川芎・艾叶・薄荷・桂皮・三白草・丁香など。
ととのいの先にはまどろみが……
休憩室①


休憩室も男女分かれているのがしきじの特徴。
奥にはさらに小休憩所や仮眠室、ドレッシングルームがあり、Wi-Fiも完備している。
食堂はすべて手作りでおいしいと評判。
すっかりととのった男たちがゆったりまどろむ聖域だ。
① バリエーション豊富なマンガ

男性休憩所のマンガ蔵書は約3800冊。
現在はスタッフが購入しているが、初期は笹野家に置ききれなかったマンガが持ち込まれていたとのこと。
② なにを食べてもおいしい食堂

カウンタータイプの食堂スペース。
すべてスタッフの手作りで、魚は地元の有名な魚屋から仕入れている。
③ ゆったりできるリクライニングシート

大休憩室のリクライニングシートは全部で21脚。
週末はかなり混雑するそうなので注意が必要だ。
④ 湯上がりの体をさらにほぐす


マッサージの受付時間は9時~23時。20分1700円から受けられる。
料金は食堂同様、リストバンドの番号で、受付で精算できる。
すぐそばには仮眠室、洗面所も
休憩室②

階段を上がった右側の休憩室。
正面には大画面のテレビ、壁にはマンガが並んだ本棚が3つあり、ゆっくりくつろぐことができる。
角部屋で正面と左手が窓のため、晴れた日はかなり明るい。
右手奥は仮眠室、右手前は洗面室に繋がっている。
① 布団で寝たければ仮眠室がオススメ

しっかり眠りたい人向けの仮眠室は定員8人。
パソコン、携帯電話、スマートフォン等の使用は禁止となっている。
② 身だしなみはここで整えて

アメニティー完備の洗面所。
特に歯磨き粉は各所に大きなチューブが置いてあり、しっかり歯磨きできるのがうれしい。
③ こちらでもリラックスできる

リラックスチェアは16脚。
サウナ上がりの人々がマンガを読んだり、テレビを見たりと思い思いに過ごしている。
④ マンガの充実ぶりにはマンガ好きも大満足!

幅広いジャンルのマンガが並ぶ本棚は、この部屋だけでも3つある。
セレクトはオーナーである笹野家の御子息たち。
コンパクトだが魅力が凝縮
浴場(女性)

女場は男湯の約半分程度のスペース。
コンパクトな作りになっているが、水風呂やサウナなど設備に違いはなく、塩や氷など女湯ならではのサービスも存在するので、女性サウナーなら間違いなく楽しめるはず!
① 天然水の水風呂は女性も同様

水風呂は約2メートル四方で定員5名程度。
男湯にあった滝はないが吐水口から水を汲むことは可能。
一日一度12時に入れ替えている。
② 美容と健康に効く薬草サウナ

こちらも男湯と同じくフィンランドと薬草のサウナ。
水風呂側がフィンランドで、洗い場側が薬草サウナになっています。
③ クーラーボックスには氷が完備

ベンチにはクーラーボックスに入った氷が完備。
口に入れて体温を下げたり、顔に塗ることでお肌引き締め効果も。
女湯だけのサービスだ。
④ デトックス効果があるジャグジー風呂

ジャグジー風呂は約10平方メートルの定員8名程度。
サウナと水風呂の間で、どのタイミングに入るかがセンスを問われる。
⑤⑥ 独特の香りがクセになる薬草風呂

薬草風呂は定員6人程度。上がったすぐ横のベンチには塩が置いてある。
これも美容を気にする女性ならではのサービスだ。
まったりと落ち着いて楽しめる
フィンランドサウナ(女性)

フィンランドサウナも男湯の半分程度。
しかしドア付近とストーブ付近にL字スペースが2箇所あり、サウナにまったりとした落ち着きを求めるにはちょうどいい大きさでは。
当然ながら設備は男性サウナと同じものなので濃縮した熱気を楽しめるはず。
① サウナの室温は約90℃


常連は1段目のサウナストーブのすぐ近くのL字スペースにいることが多いそう。
確かに壁には背もたれを楽しんだ跡がある。
② 女性側もサウナは2段
女性用は2段。コンパクトなスペースなので、上段はかなり強烈な熱気だ。
③ 清掃が行き届いた室内
どこに座ってもサウナストーブとの距離が近いので、男性用よりしっかりと熱される。
逃げ場がないという表現もあるが……。
美容効果の高い薬草!
薬草サウナ(女性)

美容効果の高い薬草サウナはまさに女性にうってつけ。
温度は男性と同じだが、湿度は少し高めの70度。
一度軽く蒸されてメイクを落としに浴室に戻ってから本番!という女性もいるそう。
なお、成分は男性と同じだが季節によって調合師が変えているとのこと。
① こだわりの薬草がここにも

女性用薬草サウナに吊されている薬草袋は12袋。こちらも2週間に一度交換で、その後は床下のタンクで蒸気となる。
② サウナの室温は60℃前後
床下から吹き出す蒸気。
女性によってはフィンランドサウナよりも薬草サウナを多く利用する人もいるとのこと
③ 足元から蒸気が上がる
段は2段。
男性サウナよりもスペースは小さいが、その分薬草の効果を濃く感じることができるはず。
④ 隣が見える構造は男性と同様
男性用サウナと同じく、フィンランドサウナとの間に開放感を感じる大きなガラス窓があり、向こうのテレビを見ることができる。
小上がりもあって居心地良好
休憩所(女性)

男性に比べてリクライニングシートの数も少なくコンパクトな休憩所。
しかしその分余計な気遣いすることなくまったりと過ごすことができるはず。
仮眠室はないが、小上がりや床に布団を敷くスペースもあって、男性とは違った居心地の良さがある
① 布団を敷いて寝られる座敷

男性休憩室にはない小上がり。
テーブル席よりさらに脱力できること間違いなし。2,3人で来たらここを取るしかない。
② アメニティ充実のドレッシングルーム

男性用でマッサージルームにあたるところがドレッシングルームになっている。
天然水とサウナと薬草で磨かれた肌は化粧のノリも違う!
③ 女性の一番人気は「冷麺」

男性用と同じく飲食スペース完備。
素材や調理法もさることながら、水がいいから何を食べても美味い!
④ 時には床に布団を敷くことも可能

マンガの蔵書は約700冊。
すぐ近くにガッツリ寝る布団スペースがあるということは、しきじの女性客はあまりマンガを読まないのかも。
サウナしきじの心臓部
機械室
サウナや温度の設定する機械やお湯を温めるボイラーなどがあるまさにサウナしきじの心臓部とも呼べる部屋が、一般人が立ち入ることができないこの機械室だ!



蒸気、温水をつくるボイラーは全部で3台。

ポンプやヒータなどの運転、制御、操作するための各種電気機器を納めた装置である動力ポンプ制御盤。サウナの温度もこれで設定するようだ。

膨大な量が出るバスタオル、タオル、館内着を乾かす巨大な乾燥機。
ここまで、しきじの一部を紹介してきたが、実はサウナ以外にも魅力あふれる施設なのだ。
「聖地」と呼ばれるゆえんがそこにはあるのだが、それにはまず訪れてみるのが一番。
ぜひ一度体感してほしい。
※写真はいずれも2020年3月当時のものになります。

うなべえ ‘s comment
古き良きサウナの全てが詰まった
まさに聖地ざんすね〜!
『しきじ』を詳しく知りたいならコチラ!⬇︎
『サウナしきじ』
OFFICIAL BOOK !!
好評発売中!
タナカカツキ(マンガ家)、やついいちろう(芸人)、門脇⻨(女優)、YO-KING(ミュージシ ャン)、ヒャダイン(音楽クリエイター)、はじめしゃちょー(Youtuber)、磯村勇斗(俳優)、澤円(元・日本マイクロソフト)、鷹鳥 屋明(Cultures Factory)、鄭大世(清水エスパルス)、宮田和幸(格闘家)などなど……コメントをいただきました!
サウナしきじ
【住所】静岡県静岡市駿河区敷地2-25-1
【電話番号】054-237-5537
【営業時間】24時間
【定休日】なし
【料金】
[男性]1400円~(平日) 、1600円~(土日祝) 、メンズ・タイムサービス(18:00~21:00 / 17:00~2:00) 900円
[女性]900円~(1日) 、レディース・エコ・サービス(1時間入浴、館内着・タオルは含まない)500円
【HP】https://www.saunashikiji.jp/



